咚咚地产头条-深圳房地产信息网

深圳[切换]

首页> 咚咚地产头条> 资讯 > 正文

预计推808套住宅!福田又一新盘预计年后入市

楼市爆料 发布时间:2022.01.24 07:52:35
浏览:14850

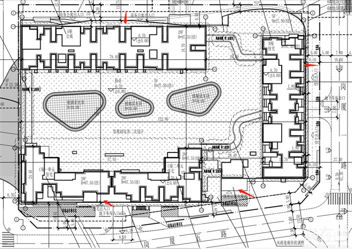
近日,家在深圳网友爆料,福田又一个新盘岗厦汇花园,预计有808套住宅,套内小于90平,892户,占比95.61%。目前处于施工阶段,预计年后入市。


岗厦汇花园位于福田区福华路和海田路交汇处。项目用地面积13782.99平,总建筑面积155005平,容积率9.02。共4栋住宅,其中三栋28层住宅,1栋公寓A座公寓,B座住宅,C座一单元,C座二单元住宅,97米高。


项目建成后,将完善中心区的功能和空间结构,并以紧凑的空间形式,多样性的建筑和复合性的物业形态,高品质的城市环境,建设一个居住、商业、办公、休闲和娱乐等功能为一体的综合发展区,一个独具特色的、高品质的CBD配套区。




项目参数



优点:感觉少有的小面积住宅,对外不多,自家的商业综合体,又是市中心。


缺点:没什么好学校:车位比有点少,容积率有点高。


参考周边二手指导价格,风华盛世7.48万/平,中心天元13.5万/平,星河世纪8.5万/平,彩福大厦5.56万/平。



周边地铁:岗厦地铁。


周边学校:岗厦小学校,文天祥小学,莲花中学。




【楼市爆料】 所属房网/咚咚找房平台 资讯中心团队原创号,转载文章请注明来源,转公众号请与我们取得联系!

本文部分信息及图片如涉及侵权,请联系删除。


福田 独家视角 深圳要闻

分享:

相关阅读

深圳房地产信息网

电话:83592095(新房广告业务)/ 83592095(二手房业务)/ 83680819(地图业务)/ 83592095(家居装修业务)

18320887519(保障房业务)/ 83592095(城市更新业务)/ 83592095(品牌合作)/ 83592095(其他)

传真:83680527   

法务部 座机:0755-83684400 邮箱:yituzx@163.com

地址:深圳市福田区沙头街道天安社区泰然四路66号泰然立城A座12-14楼

深圳市咚咚互联科技有限公司 版权所有,未经同意请勿转载

ICP备案号:粤ICP备2021009096号

粤公网安备 44030402000760号

深圳市市场监督管理局企业主体身份公示

手机找房服务APP

手机找房服务APP

咚咚找房公众号

咚咚找房公众号